Estudi
Projectes
Notícies
Contacte
Close
Estudi
Projectes
Notícies
Contacte
Ctra de Sant Feliu 17
08480 L’Ametlla del Vallès
( +34) 658342092
info@tauladarquitectura.com
© Taula Arquitectura 2026.
Català
Català
Español
English
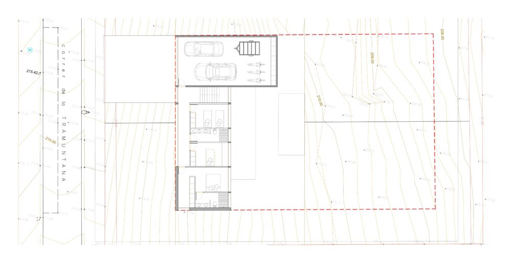
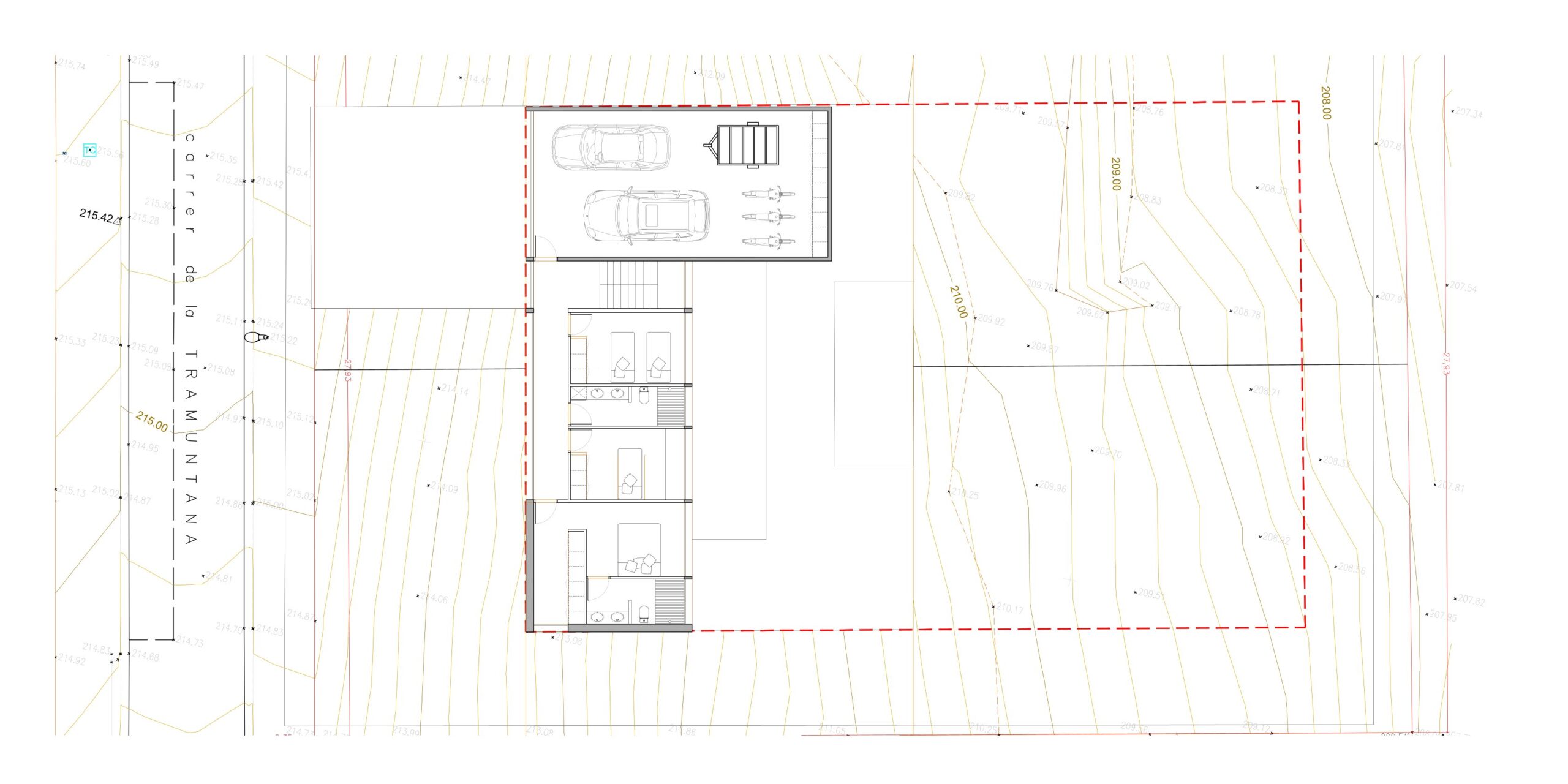
_2220_tramuntana
_2210_teia2
_2308_castell
Taula d'Arquitectura
Ctra de Sant Feliu 17
08480 L’Ametlla del Vallès
Jordi sanz (+34) 658342092
info@tauladarquitectura.com
Roger (+34) 644363091 (Eivissa)
roger@tauladarquitectura.com
SEGUEIX-NOS
Instagram
LinkedIN
Contacte
© Taula d’Arquitectura 2025.